Espace propriétaire
Espace propriétaire
fr
Alerte e-mail

Votre recherche

Descriptif de ce bien

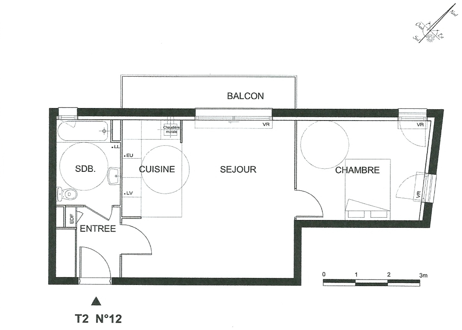
Au 1er étage d'une résidence (sécurisée) en copropriété, APPARTEMENT TYPE 2 , comprenant : Entrée avec placard, séjour, cuisine aménagée et équipée ouverte, salle de bains et chambre. Balcon de 5.30m². 2 places de parking extérieur. Chauffage et eau chaude par chaudière individuelle au gaz. Surface habitable : 47,40 m². Disponible mai 2023.

Général
Code postal 45140
Nombre de chambre(s) 1
Nombre de pièces 2
Etage 1
Ascenseur OUI
Détails
Nb de salle de bains 1
Cuisine Américaine
Type de cuisine Equipée
Mode de chauffage Gaz
Type de chauffage TRAD_TYPE_CHAUFF_CHAUDIERE
Format de chauffage Individuel
Balcon OUI
Terrasse NON
Nombre de parking 1
Année de construction 2014
Composition
Rez de chaussée
chambre 12.30 m²

entrée 3.90 m²

salon/sejour 20.60 m²

cuisine 5.50 m²

salle de bain 5.10 m²

terrasse 5.30 m²

Quartier
  • Commerces et santé
  • Loisirs
  • Ecoles
  • Transports
  • Pratique
Energie
DPE GES
Contacter pour ce bien
L'agence
Téléphone 02 38 74 82 14
Adresse
141 Rue Nationale, 45140 Ormes

* Champ obligatoire

Les informations recueillies sur ce formulaire sont enregistrées dans un fichier informatisé par La Boite Immo agissant comme Sous-traitant du traitement pour la gestion de la clientèle/prospects de l'Agence / du Réseau qui reste Responsable du Traitement de vos Données personnelles. La base légale du traitement repose sur l'intérêt légitime de l'Agence / du Réseau. Elles sont conservées jusqu'à demande de suppression et sont destinées à l'Agence / au Réseau. Conformément à la loi « informatique et libertés », vous disposez des droits d’accès, de rectification, d’effacement, d’opposition, de limitation et de portabilité de vos données. Vous pouvez retirer votre consentement à tout moment en contactant directement l’Agence / Le Réseau. Consultez le site https://cnil.fr/fr pour plus d’informations sur vos droits. Si vous estimez, après avoir contacté l'Agence / le Réseau, que vos droits « Informatique et Libertés » ne sont pas respectés, vous pouvez adresser une réclamation à la CNIL. Nous vous informons de l’existence de la liste d'opposition au démarchage téléphonique « Bloctel », sur laquelle vous pouvez vous inscrire ici : https://www.bloctel.gouv.fr Dans le cadre de la protection des Données personnelles, nous vous invitons à ne pas inscrire de Données sensibles dans le champ de saisie libre.
Ce site est protégé par reCAPTCHA, les Politiques de Confidentialité et les Conditions d'Utilisation de Google s'appliquent.

Découvrir nos outils